您好,欢迎光临广西东青华实验设备有限公司官方网站!
全国咨询热线:
185-7795-5927
厦门国际邮轮中心新航站楼出入境负压隔离区由我司二次深化设计及后期的建设,主要建设内容包含有内部装修、电气装修、给排水装修、暖通装修、配套实验家具、监控对接系统及项目的智能控制系统等。智能控制系统保证该区域的紫外灯定时消毒,压差报警灯。下面由广西东青华实验设备来为大家做简单介绍:
本项目设计依据:
(1).《洁净厂房设计规范》GB 50073-2013
(2).《洁净室施工及验收规范》GB50591-2010
(3). 生物安全实验室建筑技术规范》GE50346-2011
(4).《实验室生物安全通用要求》GB519489-2008
(5).《建筑装饰装修工程质量验收规范》GB50210-2018
(6).《建筑地面工程施工质量验收规范》GB50209-2010
(7).《综合医院建筑设计规范》 GB51039-2014
(8).《建筑内部装修设计防火规范》 GB 50222-2017
(9).《口岸负压隔离留验设施建设及配置指南》SN/T 5296-2021
(10).《建筑照明设计标准》GB50034-2013
(11).《通风与空调工程施工质量验收规范》GB50243-2016
(12).建筑给水排水设计标准[附条文说明] GB50015-2019
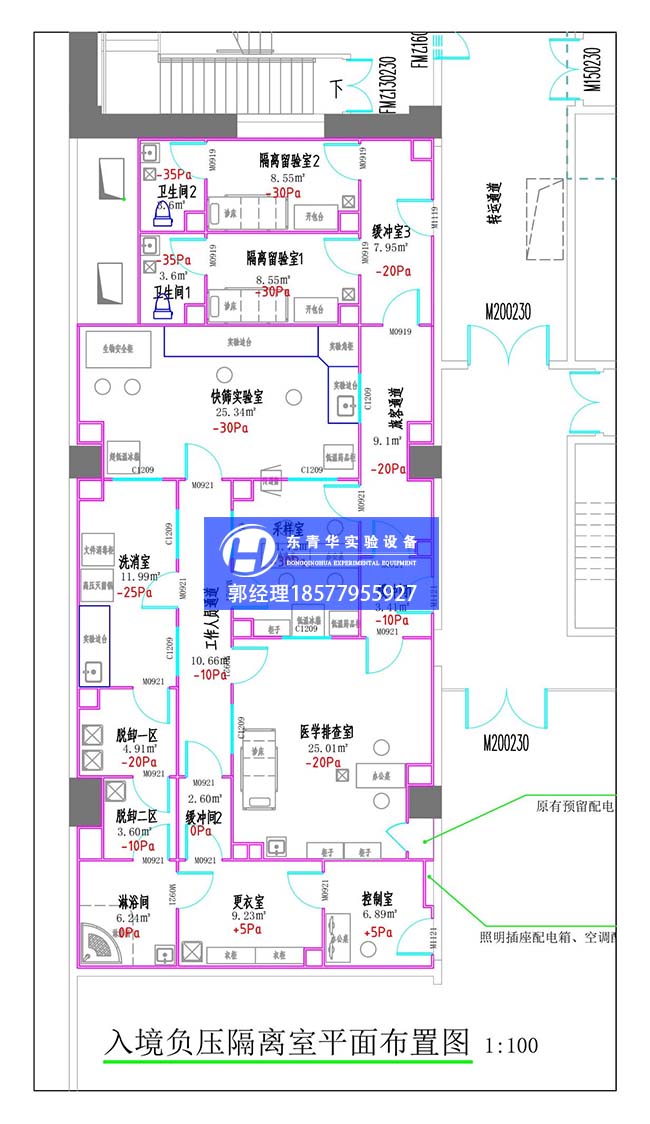
该项目主要分为两层,一层为出境负压隔离室,一层为入境负压隔离室,如下图是平面设计图(平面设计图只做参考,具体施工图需要二次深化厂家进行深化,方可进行施工):
负压隔离区的设计主要结合设计依据、人员流向(医护人员及旅客人员区分)、设施操作流程进行布局,主要房间有:隔离留验室、医学排查室、快速筛查实验室、洗消室等主要房间。


针对暖通部分的设计
1、根据现场需求每层各配置一台全新风风冷式恒温洁净空调机组,根据现场实际情况,确定空调外机所在位置,结合该层所需的总风量进行定制空调机组,保证能满足现场的使用。
2、排风机与空调机组联动保证室内压差调节;
3、送风采用高效过滤送风口(配置手动对开多叶调节阀),回风柱下设底排风口(配置手动对开多叶调节阀),排风口带高效过滤+光氢离子空气装置(UV消毒装置),房间排风经过过滤处理后再排入排风井中,气流组织为上送下排;
4、智能控制系统:①该项目配有智能控制系统,该系统可以显示每个房间负压情况,如超过设定压差会自动报警;②可控制洁净空调的空调开关启动,并可以调节温度;③一健控制区域内所有洁净灯,一健控制区域内所有紫外线灯,并且都可以定时开关,预约时间开启;④一键控制区域内排风的生物废气处理装置。

门窗部分:
1、门均采用密闭钢制门,门扇采用6063T-T5铝边框,面板宝钢或鞍钢彩涂板制作而成,门扇由门扇铝边框四周包围压住彩钢板组成,且门扇面不会产生高低阶、表面平整. 彩涂板漆面耐腐蚀、耐磨、抗污等优点;开400*500视窗,门扇视窗采用5mmt双层钢化玻璃,窗框和门扇一体复合,不易脱落,观察窗与面板平齐无缝无死角;门扇芯材采用的是A1级防火铝蜂窝,其中心为铝质六边形,蜂窝无可燃物质,阻燃,防水、防潮、无有害气体释放。
2、密闭透视窗采用固定式双斜电泳铝合金窗框,以保证良好的气密性,玻璃采用厚度5mm安全玻璃。


电气部分:
1、设置一键控制负压室所有紫外线灯的开关带定时器,单独房间紫外线灯也设置单独设置开关带定时器,紫外线灯采用吸顶式(一个总区域灯总开关带定时器,一个房间灯开关带定时器,总开关可以定时开关,预约时间开启)。
本项目采用智能控制系统,可以在智能控制系统的主机显示屏上一键控制负压室所有紫外线灯的开关带定时器,可以一键控制本区域的所有灯具开关,能控制空调的开关,可设置一键预约启动。实现了区域的智能操作控制化,满足了项目的使用要求。我司主要从事负压隔离区、化妆品洁净区、制药洁净工程、海关实验室等项目的设计及建设,如果您有需要可联系广西东青华实验设备,我们将根据您的需求,为您设计出令您满意的方案!